This is modern and elegant house design built in 855 sqm area of 6 Ramsgate Road, Singapore. This house has total 1200 sqm site area and designed by Wallflower Architects. View the images or read the project Description.


Project Description
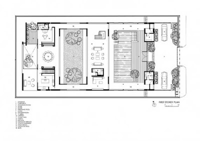
‘The client’s desire for the home to have a perception of substantial private space has resulted in the development of a spatial program that internalizes spaces such as pools and gardens normally regarded as external to the envelope of the house. By zoning spaces such as the bedrooms and servants’ quarters on alternative levels, i.e. 2nd story and basement levels, the ground plane is freed from walls that would have been required if public and private programs were interlaced on the same plane.
The site is approximately 25m wide by 48m deep, and because of the intermingling of internal gardens and column-free vistas, there is a continuous and unbroken visual depth of 40m that ties together the entrance foyer, swimming pool, formal living area, internal garden court and formal dining areas. These are perceived to be within the built enclosure of the house, yet a very obvious public to private hierarchy assists in the intangible zoning and spatial orientation within the house. This is simply achieved by classical use of symmetry, with important areas axial to the centre line of the house, and with increasingly private space implied by the distance from the main entrance.
The environmental transparencies at ground level and between courtyards are important in passively cooling the house. All the courtyards have differing material finishes and therefore differing heat gain and latency (water, grass, water, granite). As long as there are temperature differences between courtyards, the living, dining, and pool house become conduits for breezes that move in between the courtyards, very much like how land and sea breezes are generated. The use of thick masonry walls on either side of the house keep temperature gradients small within the house and also act as enormous ‘ducting’ in guiding air currents between courtyards. At the second story, solid hardwood louvers that can be adjusted by hand allow the desired amount of breeze and sunlight to filter through. And at the 1st story, substantial trellising minimize sun entry into habitable areas.
The environmental transparencies at ground level and between courtyards are important in passively cooling the house. All the courtyards have differing material finishes and therefore differing heat gain and latency (water, grass, water, granite). As long as there are temperature differences between courtyards, the living, dining, and pool house become conduits for breezes that move in between the courtyards, very much like how land and sea breezes are generated. The use of thick masonry walls on either side of the house keep temperature gradients small within the house and also act as enormous ‘ducting’ in guiding air currents between courtyards. At the second story, solid hardwood louvers that can be adjusted by hand allow the desired amount of breeze and sunlight to filter through. And at the 1st story, substantial trellising minimize sun entry into habitable areas.
The planning strategy releases substantial volumes of perceptual as well as tangible space that is normally not experienced if traditional architectural space planning norms are not reinterpreted in our local context. Environmentally, the contiguous and interconnected space encourage the slightest breezes, whether they are prevailing and therefore air-movement is horizontal, or convectionally circulated, which the courtyards help generate. For the owner, it is the experiential serenity that unencumbered space, a gentle breeze, dappled sunlight and the hush of water rippling on a pond that is priceless in our dense and busy urbanscape.’
No comments:
Post a Comment